Projektierung und Analyse MFHs Stuttgart
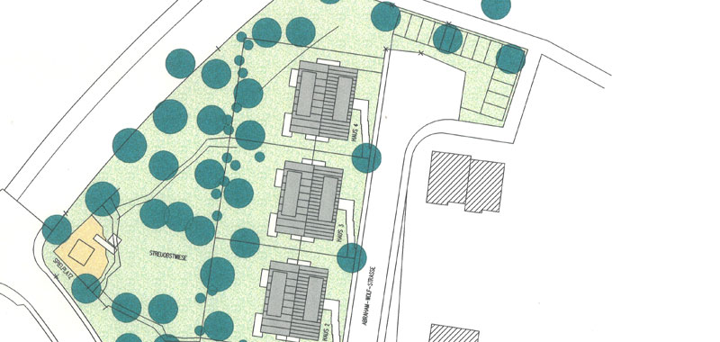
Entwicklung für den Investorenwettbewerb der Stadt Stuttgart. Geplant waren vier MFHs auf dem Grundstück von ca. 4.500m² mit einer Wohnfläche von dann ca. 2.900 m² bei einer geplanten Investitionssumme ca. EUR 7,464 Mio.


